Общий журнал работ
Для учета выполненных работ в системе ведутся электронные журналы, в которые ответственные лица записывают данные фактически выполненных работ, а, при подключении к сервису представителей ГСН, также производится контроль заполнения и корректности данных. Просмотр и создание записей осуществляется в меню «Журналы», в разделах общие и специальные журналы.
Создание общего журнала работ. В меню «Журналы» перейдите в раздел «Общие журналы работ», нажмите на кнопку «Создать» — откроется окно создания журнала. Если в проекте были указаны основные юридические лица, тогда они автоматически подставятся в соответствующие поля (Рисунок 1).
Рисунок 1 – Основные сведения общего журнала работ
Чтобы при заполнении работ они автоматически заполнялись в общем журнале, нужно поставить галочку в поле «Это основной журнал», далее следует указать заключение проектной экспертизы и разрешение на строительство, для этого нажмите на кнопку «…» и в открывшемся окне (Рисунок 2) выберите сведения о заключении государственной экспертизы и разрешение на строительство.
Рисунок 2 – Добавление сведений о разрешении на строительство
Если к проекту подключен представитель ГСН, то он имеет доступ к указанию номера дела и регистрации журнала. После отправки журнала на согласование инспектору ГСН заблокируется доступ к изменению сведений титульного листа, и внесение изменений будет возможно только через соответствующий раздел.
Для внесения изменений в титульный лист перейдите во вкладку сведения об изменениях титульного листа, и нажмите кнопку «Создать» (Рисунок 3).
Рисунок 3 – Сведения об изменениях титульного листа
В открывшемся окне заполните основные сведения о лице, которое вносит изменения, а также выберите необходимую вкладку и добавьте данные, которые хотели бы скорректировать, через кнопку «Добавить» (Рисунок 4). Для завершения процесса нажмите кнопку «Провести и закрыть».
Рисунок 4 – Внесение информации об изменениях
При статусе «Зарегистрировано» общего журнала работ свободное редактирование информации о назначении физических лиц, указанных в качестве ответственных представителей, также становится невозможным. Любые изменения следует вносить через вкладку «Сведения об изменениях титульного листа».
Данные о представителях в разделах 2-6 заполняются автоматически при добавлении ответственных лиц в проект, выполнении работ и формировании исполнительной документации (Рисунок 5).
Рисунок 5 – Данные общего журнала работ
Для заполнения 1 раздела перейдите на вкладку «Разделы» и нажмите кнопку «Добавить», далее заполните соответствующие поля.
Сведения о выполненных работах. Раздел 3 Общего журнала работ можно заполнять непосредственно из формы Общего журнала работ, но удобнее вносить записи, воспользовавшись специальной формой списка работ. В меню «Журналы» перейдите в раздел «Работы по ОЖР», в данном разделе содержатся сведения о выполненных работах, которые можно фильтровать по разделам проектной документации, автору и представителю подрядной организации (Рисунок 6).
Рисунок 6 – Работы по ОЖР
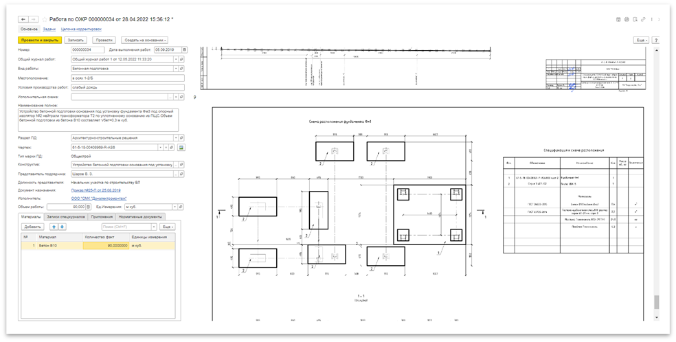
Создание записи о выполненной работе. Нажмите кнопку «Создать», в открывшемся окне (Рисунок 7) укажите:
· дату выполнения работ;
· принадлежность к общему журналу работ;
· вид работы;
· местоположение;
· условия производства работ;
· полное наименование выполненной работы;
· раздел ПД, в соответствии с которым выполнялась работа;
· представителя подрядчика, ответственного за внесение данных;
· нормативные документы.
Дополнительно можно указать чертеж из проектной документации, объем выполненных работ, примененные материалы и загрузить приложения для подтверждения качества работ, на вкладке «Записи спецжурналов» будут выводиться ссылки на записи в спец. журналах.
Следует отметить, что для автоматического заполнения вкладки нормативные документы, необходимо в справочнике Работы, в используемой работе, во вкладке нормативная документация указать нормативные документы (Рисунок 8). Впоследствии, при указании данной работы, вкладка нормативная документация будет заполняться автоматически.
Рисунок 7 – Создание работы по ОЖР
После заполнения всех данных нажмите на кнопку «Записать», если планируете внести позже какие-то корректировки и кнопку «Провести» или «Провести и закрыть», чтобы сохранить и добавить данные в общий журнал работ.
Рисунок 8 – Нормативные документы
Корректировка записей выполненных работ. После того, как записи были внесены в общий журнал работ, изменить их нельзя. Для того чтобы внести изменения необходимо использовать функцию «Корректировка», для этого правой кнопкой мыши нажмите на необходимую запись и выберите пункт «Создать корректирующую запись». В открывшемся окне внесите изменения и нажмите кнопку «Провести и закрыть». Корректирующая запись будет считаться основной, а ранее созданная — недействительной и в списке работ будет иметь более светлый оттенок (Рисунок 9).
Чтобы исключить запись из общего журнала работ, нажмите на необходимую работу правой кнопкой мыши и выберите «Считать запись недействительной».
Рисунок 9 – Корректировка записей








