Общий журнал работ
Для учета выполненных работ в системе ведутся электронные журналы, в которые ответственные лица записывают данные фактически выполненных работ, а, при подключении к сервису представителей ГСН, также производится контроль заполнения и корректности данных. Просмотр и создание записей осуществляется в меню «Журналы», в разделах общие и специальные журналы.
Создание общего журнала работ. В меню «Журналы» перейдите в раздел «Общие журналы работ», нажмите на кнопку «Создать» — откроется окно создания журнала. Если в проекте были указаны основные юридические лица, тогда они автоматически подставятся в соответствующие поля (Рисунок 1)85).
Рисунок 185 – Основные сведения общего журнала работ
Чтобы при заполнении работ они автоматически заполнялись в общем журнале, нужно поставить галочку в поле «Это основнойОсновной журнал», далее следует указать заключение проектной экспертизы и разрешение на строительство, для этого нажмите на кнопку «…» и в открывшемся окне (Рисунок 2)86) выберите сведения о заключении государственной экспертизы и разрешение на строительство.
Рисунок 286 – Добавление сведений о разрешении на строительство
Если к проекту подключен представитель ГСН, то он имеет доступ к указанию номера дела и регистрации журнала. После отправки журнала на согласование инспектору ГСН заблокируется доступ к изменению сведений титульного листа, и внесение изменений будет возможно только через соответствующий раздел.
Для внесения изменений в титульный лист перейдитенужно перейти во вкладку сведения об изменениях титульного листа, и нажмитенажать кнопку «Создать» (Рисунок 3)87).
Рисунок 387 – Сведения об изменениях титульного листа
В открывшемся окне заполните основные сведения о лице, которое вносит изменения, а также выберитенужно выбрать необходимую вкладку и добавьтедобавить данные, которые хотели бынужно скорректировать, через кнопку «Добавить» (Рисунок 4)88). Для завершения процесса нажмитенужно нажать кнопку «Провести и закрыть».
Рисунок 488 – Внесение информации об изменениях
При статусе «Зарегистрировано» общего журнала работ свободное редактирование информации о назначении физических лиц, указанных в качестве ответственных представителей, также становится невозможным. Любые изменения следует вносить через вкладку «Сведения об изменениях титульного листа».
Данные о представителях в разделах 2-6 заполняются автоматически при добавлении ответственных лиц в проект, выполнении работ и формировании исполнительной документации (Рисунок 5)89).
Рисунок 589 – Данные общего журнала работ
Для заполнения 1 раздела перейдитеследует перейти на вкладку «Разделы» и нажмитенажать кнопку «Добавить», далее заполнитезаполнить соответствующие поля.
Сведения о выполненных работах. Раздел 3 Общего журнала работ можно заполнять непосредственно из формы Общего журнала работ, но удобнее вносить записи, воспользовавшись специальной формой списка работ. В меню «Журналы» перейдитеперейти в раздел «Работы по ОЖР», в данном разделе содержатся сведения о выполненных работах, которые можно фильтровать по разделам проектной документации, автору и представителю подрядной организации (Рисунок 6)90).
Рисунок 690 – Работы по ОЖР
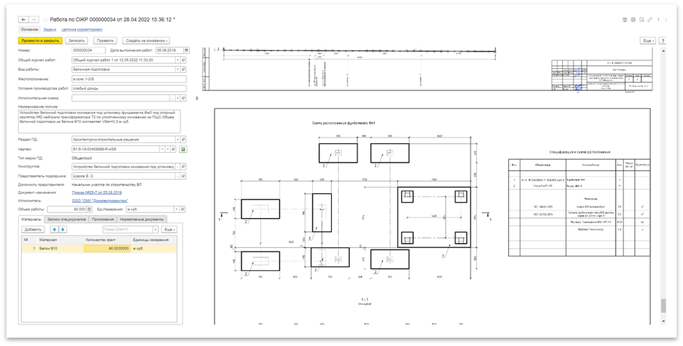
Создание записи о выполненной работе. НажмитеНажать кнопку «Создать», в открывшемся окне (Рисунок 7)91) укажите:указать:
· дату выполнения работ;
· принадлежность к общему журналу работ;
· вид работы;
· местоположение;
· условия производства работ;
· полное наименование выполненной работы;
· раздел ПД,РД, в соответствии с которым выполнялась работа;
· представителя подрядчика, ответственного за внесение данных;
· нормативные документы.
Дополнительно можно указать чертеж из проектной документации, объем выполненных работ, примененные материалы и загрузить приложения для подтверждения качества работ, на вкладке «Записи спецжурналов» будут выводиться ссылки на записи в спец. журналах.
Следует отметить, что дляДля автоматического заполнения вкладки нормативные документы, необходимо в справочнике Работы, в используемой работе, во вкладке нормативная документация указать нормативные документы (Рисунок 8)92). Впоследствии, при указании данной работы, вкладка нормативная документация будет заполняться автоматически.
Рисунок 791 – Создание работы по ОЖР
После заполнения всех данных нажмитенеобходимо нажать на кнопку «Записать», если планируете внести позже какие-то корректировки и кнопку «Провести» или «Провести и закрыть», чтобы сохранить и добавить данные в общий журнал работ.
Рисунок 892 – Нормативные документы
Выгрузка XML-схемы является необязательным действием и выполняется только в случаях, когда требуется передача данных во внешние системы или использование схемы в сопутствующих процессах.
Корректировка записей выполненных работ. После того, как записи были внесены в общий журнал работ, изменить их нельзя. Для того чтобы внести изменения необходимо использовать функцию «Корректировка», для этого правой кнопкой мыши нажмитенужно нажать на необходимую запись и выберитевыбрать пункт «Создать корректирующую запись». В открывшемся окне внеситевнести изменения и нажмитенажать кнопку «Провести и закрыть». Корректирующая запись будет считаться основной, а ранее созданная — недействительной и в списке работ будет иметь более светлый оттенок (Рисунок 9)93).
Чтобы исключить запись из общего журнала работ, нажмитенужно нажать на необходимую работу правой кнопкой мыши и выберитевыбрать «Считать запись недействительной».
Рисунок 993 – Корректировка записей

















